中古マンション
「利回り」は、当該不動産の1年間の予定賃料収入の不動産取得対価に対する割合であり、公租公課その他当該物件を維持するために必要な費用の控除前のものです。
また、予定賃料収入が確実に得られる事を保証するものではありません。

「ザ・ステイツ志木パークステージ」。専有面積84.13平方メートルですので快適な生活ができます。専有面積が25坪以上ある為、ファミリーの方も快適に暮らすことができます。バルコニーの広さは8.7平米です。新居をお求めなら、地域に詳しい当社にご依頼下さい。お客様のこだわりやご要望などがあれば、メール又はお電話から当社、志木市周辺 地域密着 LIXIL不動産ショップMK不動産までお申し付けください。
※地図上の物件位置は近隣に物件が所在することを表すものであり、実際の物件所在地とは異なる場合がございます。
0484758328
営業時間:10:00~19:00 / 定休日:火曜日・水曜日
| 所在地 | 埼玉県志木市本町2丁目 | ||
|---|---|---|---|
| 交通 |
東武東上線 「志木」駅
徒歩18分 バス5分 富士道入り口下車 徒歩5分 東武東上線 「柳瀬川」駅 徒歩29分 武蔵野線 「北朝霞」駅 徒歩30分 |
||
| 価格 | 2,699万円 | 管理費 | 20,890円 |
| 修繕積立金 | 14,350円 | 修繕積立基金 | |
| 所在階/階数 | 1-2階 / 7階建 地下1階 | 築年月(築年数) | 1996年 3月(築29年) |
| 専有面積 | 84.13㎡ | バルコニー面積 | 8.70㎡ |
| 建物構造 | 鉄筋コンクリート(RC) | 主要採光面 | 南東 |
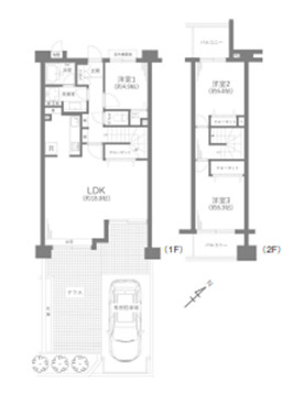
| 間取り |
3LDK
LDK 18.0帖 / 洋室 4.9帖 / 洋室 6.3帖 / 洋室 6.0帖 / |
||
| リフォーム | 内装リフォーム:2024年7月 | ||
| 引渡し | 相談 | ||
| 管理 | 管理形態:管理会社に全部委託、 管理員の勤務形態:日勤、 管理組合:有、 管理会社:住友不動産建物サービス | ||
| 土地権利 | 所有権 | 用途地域 | 第二種住居地域 |
| 土地の権利形態 | |||
| 駐車場 | 空き台数:1台 、 空有、月額料金:14,000円(非課税) | ||
| 設備条件 | 陽当り良好 / リフォーム / リノベーション / 眺望良好 / 新婚さん向け / ファミリー向け / 室内洗濯機置場 / フローリング / メゾネット / バルコニー / 駐輪場 / バイク置場あり / ガスコンロ / コンロ2口以上 / 食器洗い乾燥機 / システムキッチン / コンロ3口 / バス・トイレ別 / 追焚機能浴室 / 浴室乾燥機 / 温水洗浄便座 / 洗面台 / 収納豊富 / オートロック | ||
| その他条件 | |||
| 備考 |
志木市エリアでの住まいなら、住み心地も快適な「ザ・ステイツ志木パークステージ」はいかがでしょうか。食器洗乾燥機は食後の家事の時間短縮に役立ちます。ニーズの高い設備である追焚機能が付いている浴室になります。東武鉄道東上線志木駅周辺なら、通勤や通学においてあまり不便さを感じないでしょう。さらにご希望の条件があれば、当社にお聞かせ下さい。 志木市のMK不動産は志木市を中心に地域密着で不動産サービスを提供しています。当社はアクセスのよい志木駅より徒歩3分の場所にございます。さらに、当社はキッズルームが完備されています。お子様が安心して遊べる広々としたスペースがあり、お子様連れでも安心してお越しいただけます。志木市でのご新居や投資物件のご案内はもちろん、売却や購入やリフォームなどに関するご相談もお気軽にお問い合わせください。豊富な情報と経験豊富なスタッフが、お客様のご希望やニーズに合わせた不動産をご提案いたします。地域に根ざした信頼性と親切なサービスをモットーに、お客様との信頼関係を大切にし、安心して不動産取引を進めていくことをお約束いたします。志木市のほかにも周辺エリアの不動産情報も取り扱っております。MK不動産はお客様の幸せな暮らしをサポートするパートナーとして、最良のサービスを提供いたします。お気軽にお問い合わせください。 ~志木市周辺 地域密着 LIXIL不動産ショップMK不動産~ 志木市に35年以上住んでいるため志木市、朝霞市、新座市、富士見市、ふじみ野市のことならなんでもご相談下さい!もちろんその他地域についてもお聞き下さい! |
||
| 周辺の学校 | 志木市立志木中学校(約1,554m / 徒歩20分)、志木市立志木小学校(約916m / 徒歩12分) | ||
| 取引態様 | 仲介 | 物件番号 | 92327612 |
| 情報公開日 | 2026年1月21日 | 次回更新予定日 | 2026年2月3日 |
| 取引条件の有効期限 | 2026年2月3日 | ||
| 取扱い会社 |
MK不動産株式会社 〒353-0004 埼玉県志木市本町5丁目18−22エルシティミカミ 202 埼玉県知事(1)第24741号 |
||
0484758328
営業時間:10:00~19:00 / 定休日:火曜日・水曜日
| 所在地 | 物件の住所を表示。(詳細住所は表示していない場合もある) | ||
|---|---|---|---|
| 交通 | 物件(部屋)の沿線駅・バス停を表示。(複数駅・バス停の利用が可能な場合は最大3件まで) | ||
| 間取り/詳細 | 数字は居室数を表示。LDKはそれぞれ「リビング」「ダイニング」「キッチン」、S(納戸)とは「納戸」「サービスルーム」「マルチルーム」「フリールーム」など建築基準法第28条に適合していないため、居室と認められない納戸その他の部分を表す。 | ||
| 価格 | 販売されている住戸の価格を表示。仲介手数料は含まない。 | ||
| 管理費 | 共同住宅の設備その他共用部分の維持および管理をするために必要な費用を表示。 | ||
| 修繕積立金 | 共用部分の修繕のために積立てる金額を表示。 | ||

中古マンション
| 価格 | 2,290 万円 | ||
|---|---|---|---|
| 間取り | 3LDK | 築年月(築年数) | 1974年 3月 (築51年) |
| 専有面積 | 69.72㎡ | 階数 | 7階建 |
| 住所 | 埼玉県志木市本町6丁目16-49 | ||
| 交通 |
東武東上線「志木」駅 徒歩11分 東武東上線「柳瀬川」駅 徒歩17分 武蔵野線「北朝霞」駅 徒歩27分 |
||
中古マンション
| 価格 |
値下げ:2025/10/20 2,680 万円 | ||
|---|---|---|---|
| 間取り | 3LDK | 築年月(築年数) | 1994年 5月 (築31年) |
| 専有面積 | 56.00㎡ | 階数 | 9階建 |
| 住所 | 埼玉県志木市柏町1丁目 | ||
| 交通 |
東武東上線「志木」駅 徒歩17分 東武東上線「柳瀬川」駅 徒歩22分 武蔵野線「北朝霞」駅 徒歩35分 |
||
中古マンション
| 価格 |
値下げ:2026/01/19 2,290 万円 | ||
|---|---|---|---|
| 間取り | 3LDK | 築年月(築年数) | 1981年 2月 (築45年) |
| 専有面積 | 74.52㎡ | 階数 | 6階建 |
| 住所 | 埼玉県志木市館1丁目 | ||
| 交通 |
東武東上線「柳瀬川」駅 徒歩5分 東武東上線「志木」駅 徒歩19分 東武東上線「みずほ台」駅 徒歩28分 |
||
中古マンション
| 価格 |
値下げ:2025/12/01 2,480 万円 | ||
|---|---|---|---|
| 間取り | 3LDK | 築年月(築年数) | 1982年 2月 (築44年) |
| 専有面積 | 75.17㎡ | 階数 | 8階建 |
| 住所 | 埼玉県志木市館2丁目 | ||
| 交通 |
東武東上線「柳瀬川」駅 徒歩6分 東武東上線「みずほ台」駅 徒歩22分 東武東上線「志木」駅 徒歩26分 |
||
【居間・リビング】◆新規リフォーム済み◆専用駐車場・テラス付き3LDK◆メゾネットタイプ◆設備充実で快適♪